3D - Perspective
La
Cocorizon
*Informations pouvant varier selon les communes, nous vous conseillons de vous rapprocher du service urbanisme de votre mairie avant toute chose.
Le saviez-vous ?
L’équipement spa privatif est un élément décisif dans le prix pour une nuitée. En effet selon l’étude du marche cela implique une augmentation de 40% du prix en moyenne et permet 25% de remplissage en plus.
En 2019, une nuitée pour une cabane sur pilotis équipée d’un spa était louée en moyenne 375€ contre 206€ sans spa privatif.Etude de marché de l’hébergement insolite 2021 – Cabinet Aliance et Unicstay
- chêne massif
- ou 3 plis épicéa
- mélèze
- pin
- ou chêne
- ou aluminium
- chêne
- ou CP chêne
- mélèze
- ou acier thermolaqué (cataphorèse)
- Plat et/ou végétalisé
- Terrasse
- Pointu à 8 pans en zinc
La cocorizon en images


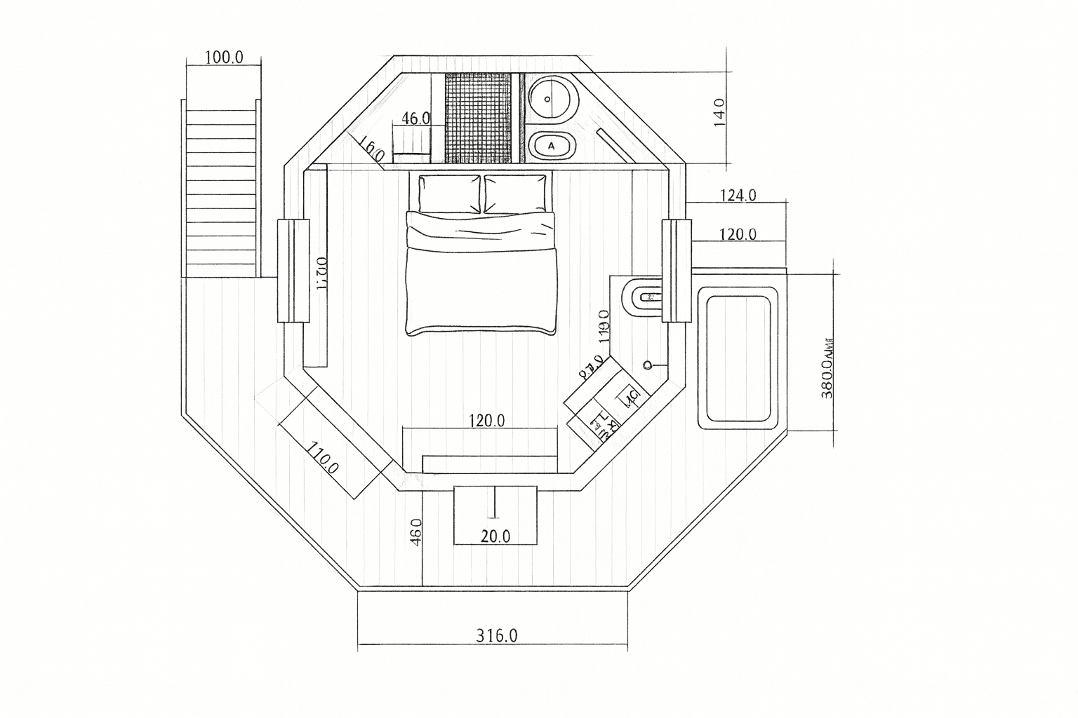
Plan - Coupe du dessus

Plan - Coupe de face
3D - vue 360°

20m² + 15m² de terasse
Sur pilotis, fondations inclues
Garantie décennale
140 mm en laine de bois (condition RE 2020)
Raccordement à l’eau et à l’électricité (sous condition de présence des réseaux à l'emplacement de la cabane)
Respect des DTU > « 31.2 / La conception de l’ossature bois – 41.2 / Bardage étanchéité – 39 / vitrage - 31.3 / Charpente - 36.5 / Pose des menuiseries »